
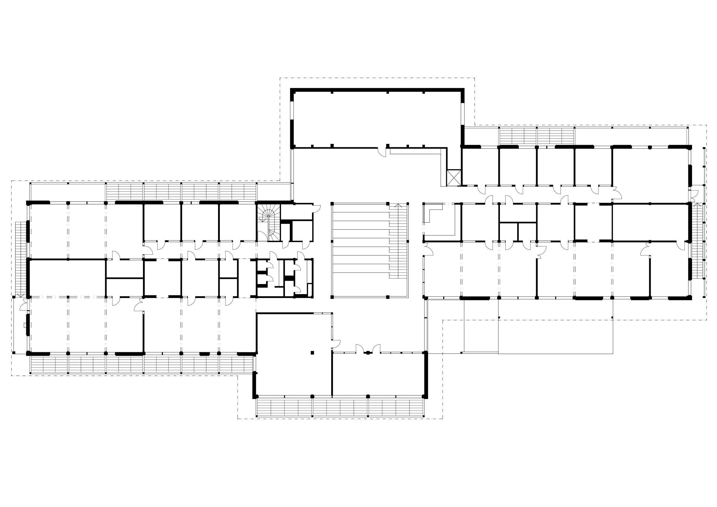
Versowood main office is designed as the new entrance to the largest private production area of sawn timber and further processed goods in Finland. The area around the office building is returned into its natural forest like character. The architecture of the building grows from the abstract simplification and appreciation of its natural surrounding. All the spaces open to their surroundings celebrating natural light and forest views. The building and its detailing are designed for a healthy working environment with a long lifespan.



















Project team
Chief designer Pekka Pakkanen, project architects Antti Mikola and Anna Kontuniemi
Client
Versowood
Interior Designer
Studio Joanna Laajisto
Construction Company
Varte Lahti
Year
2025
All photos Archmospheres / Marc Goodwin











